您好,欢迎访问河南诚开自动化系统有限公司官网,如有疑问欢迎致电我们进行咨询!
河南诚开煅烧炉温度综合自动控制系统
综合自动控温装置的组成及扩展功能:
组成:
1、牵拉式冷风门首层温度调节装置;
2、底层温度自动调节装置;
3、总负压自动调节装置。
扩展功能:
1、自动烘炉功能;
2、水套自动测温、控温功能。
获得的专利:
郑州诚开炉窑技术有限公司是国内*早研发煅烧炉自动调温的公司之一,曾取得两项**专利、两项实用新型专利、两项外观设计专利,还有三项专利在走流程。







煅烧炉自动调温行业存在的问题
目前铝用碳素行业煅烧炉调温好多还是人工条调温居多,究其原因是目前行业采用的一些厂家的自动调温系统效果并不理想,主要存在的问题是:
1、执行器都不耐高温,在夏天环境下,煅烧炉周围环境温度可高达80℃。而绝大部分的电器原件和电路板要求使用环境温度都是不超过60℃,所以好多自动调温系统都在夏天这个温度下电器原件参数失真,执行器失灵;
2、停负压时炉体喷火会烧坏执行器和控制电缆;
3、现在行业流行的自动调温系统不能调整八层温度,所有煅烧炉八层温度必须人工调整,所以并不能省人工;
4、旋转风门的进风量和执行器开度是正弦曲线关系,并不是一个线性比例关系,所以很难提高调温精度;目前铝用碳素行业煅烧炉调温好多还是人工条调温居多,究其原因是目前行业采用的一些厂家的自动调温系统效果并不理想。
我们采取的改进措施
1、首层冷风们采用远程牵曳式设计,执行器理论上可放在煅烧车间远离炉体的任意位置,执行器选用不含电路板的电动推杆,位置反馈选用不含电路版的电位器与之配合,这样执行器耐环境温度的能力大幅提高。再把执行器通过牵曳钢丝绳利用转向过轮与风门连接,这样就可以把执行器放在远离高温炉体较远的位置,控制电缆电线也可远离炉体,避免喷火烧坏和老化;
2、冷风们改用传统的推拉式风门,门的开合度是和进风量成线性比例关系的使调温更准确;
3、增加八层调温系统,可使煅烧炉底层不产生高温而损坏炉体;
4、增加总负压控制系统,致使调温方案更完善,使首层调温的运行的更加平稳。
郑州诚开自动调温技术和同行业其它厂家的不同之处
1、技术来源的区别
其它厂家:*早来源是北京华宇,经微米克改造后成为定式;
郑州诚开:**专利,自主创新,牵曳式推拉风门结构,技术****,经索通发展、锦腾碳素、中兴碳素、泮水碳素等企业运行后非常可靠。
2、控制内容的区别
其它厂家:只控制一个首层风门;
郑州诚开:不光控制首层风门,还增加了四层自控风门和负压自动控制系统,以及水套温度自动控制系统。
3、控制可靠性区别
其它厂家:测温元件只能放在炉体的三层或四层火道,放在二层不能正常运行;
郑州诚开:测温元件放在二层火道也能正常运行,其它层更没问题。
4、首层冷风门执行器的区别
其它厂家:旋转式执行器控制的冷风门,开度不与进风量成比例关系,离炉体近,高温下电气元件参数受影响,容易失灵;
郑州诚开:推拉式执行器控制的牵拉式冷风门,开度与进风量成比例关系,执行器及控制线路都离炉体很远,基本不受炉体热辐射影响。
郑州诚开自动调温系统的控制内容

综合控制原理图,该系统共分为三个分系统:
1、远距牵曳式冷风门首层自动调温系统;
2、八层火道自动调温系统;
3总负压自动调节系统。

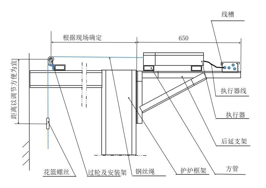
牵曳式冷风门自动控制系统

如上图所示,它包括执行器、过轮
1、涨紧器、过轮
2、销钉、推拉式风门、过轮
3、吊锤组成。
执行器通过多个过轮用牵曳绳拉开风门,关闭时靠吊锤的重力往回拉动。紧绳器的作用是手动微调推拉式风门的初始开度。销钉的作用是套挂牵曳绳,牵曳绳一段做成绳套套在销钉上,方便取挂。如果用控制单元控制执行器的伸缩,就可以控制冷风们的开合。把绳套从销钉上取下,就是一个传统的手动风门。
八层风门控制示意图

总负压控制示意图

执行器安装图

滑动门板悬空设计,推拉灵活

八层调温安装示意图

现场图片

现场图片

门板抗热变形设计

面板控制图片

中兴碳素2*24罐控制面板

自动调温相关业绩
| 序号 | 业绩详情 | 运行情况 |
|---|---|---|
| 1 | 济宁宏昌达 一台 72 罐自动调温(带八层调温,热电偶放在二层) | 良好 |
| 2 | 屏山新材料一台 32 罐自动调温 | 待安装 |
| 3 | 中州禄丰炭素:2*72 罐自动调温 | 良好 |
| 4 | 湖北索通:4*132 罐煅烧炉自动调温 | 正在安装 |
| 5 | 湖北泮水炭素:1*32 罐煅烧炉自动调温含带自动烘炉系统、含八层调温 | 良好 |
| 6 | 湖北泮水带自动烘炉系统。含八层调温炭素:2*44 罐煅烧炉自动调温含带自动烘炉系统 | 良好 |
| 7 | 宁夏锦腾碳素 48 罐自动调温系统,二层调温、八层调温、总负压联动 | 良好 |
| 8 | 索通发展临邑生产中心 3*28 罐自动调温 | 良好 |
| 9 | 中兴碳素 2*24 罐自动调温(测温元件在三、六层) | 良好 |
| 10 | 郑州宏基 324 罐、232 罐、1*16 罐二层调温、总负压联调、八层调温 | 良好 |
| 11 | 江苏汇纳 6*80 罐二层调温、八层调温、总负压联调 | 良好 |
| 12 | 温县东方碳素 2*56 罐煅烧炉二层调温、八层调温 | 正在安装 |
八层控温录像

负压闸板控制录像

HOTLINE
电话:18637455999 欢迎来电咨询
PHONE
联系人:陈经理 (18637455999)
TEL
固话:13703825229
地址:河南省许昌市城乡一体化示范区森尼瑞产业园
邮箱:18637455999@163.com